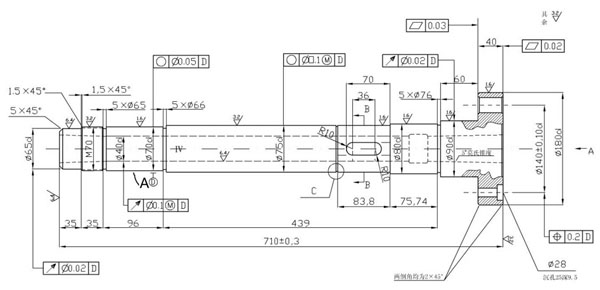
数控加工中心属于高精度设备,所以它的加工精度极其重要,工件能否达到加工要求就取决于数控加工中心本身的精度,而决定数控加工中心加工质量的就是它的主轴。数控加工中心主轴是把旋转运动及扭矩通过主轴端部的夹具传递给工件和刀具,要求有很高的强度及回转精度,其结构为空心阶梯轴,外圆表面有花键、电键等功能槽及螺纹。所以,生产主轴的工艺以及加工方法,对整个数控加工中心加工来说都有着非常重要的作用。

数控加工中心主轴的加工工艺路线大致为,首先需要进行图纸分析,确定切削表面,然后进行表面粗糙度分析,确定每个加工表面的加工精度,以确定切削加工方法。*后根据加工零件的毛坯、热处理要求、批量生产大小以及加工条件来合理安排其他加工工序。
1 主轴毛坯选择
毛坯的选择要根据制造零件的用途以及生产类型来确定。主轴零件要求材料具有良好的机械强度、韧性和耐磨性。这些性质是通过热处理方法实现的。因此要求材料具有良好的淬火硬度,同时保持材料内在的韧性。低碳合金钢的韧性优于中碳钢,故常用于重载、高速的工作环境中。氮化钢具有淬火变形小的特点,因此精密主轴常使用此种材料作为毛坯件。
毛坯主要包括两类形式:棒料和锻件。棒料主要用于单件小批量生产零件,外圆尺寸变化不大或光轴零件也常使用棒料毛坯。由于锻造过程中的金属纤维化提高了材料的机械性能,因此提高了材料的抗拉、抗弯及抗扭强度,所以多数主轴毛坯采用锻件。
2 主轴材料热处理
合理选择加工材料且合理安排热处理工序对于保障主轴力学性能极其切削加工性能具有重要作用。一般数控加工中心的主轴用45钢。数控加工中心主轴热处理工序主要包括:(1)毛坯热处理,数控加工中心主轴毛坯热处理主要目的是消除毛坯的锻造应力,使材料的金相组织*加均匀,利于之后的切削加工工序。
(2)预备热处理,在进行粗加工和精加工之前,需要进行材料的调质热处理,以便获得均匀细密的回火索氏体组织,提高力学性能。(3)*终热处理,在半精加工之后,精加工之前常加入*终热处理步骤,精度要求较高的主轴,在淬火回火后还要进行定性处理,定性处理的目的是消除加工的内应力,提高主轴的尺寸稳定性,使它能长期保持精度。定性处理是在精加工之后进行的,如低温人工时效或水冷处理。
3 加工工序划分
3.1 粗加工阶段
粗加工阶段包括毛坯处理、粗加工等步骤。毛坯的处理包括毛坯备料、毛坯锻造和正火三个工序。粗加工包括铣端面、钻中心孔及粗加工外圆等工序。粗加工阶段的主要目的是用*大的切削用量切除毛坯大部分的切削余量,将毛坯加工到接近工件的*终形状和尺寸,留下少量的加工余量。
3.2 半精加工阶段
半精加工阶段包括半精加工前热处理和半精加工两方面。半精加工前热处理是对主轴进行调质处理,使其达到220~240 HBS。半精加工包括车定位锥孔、半精车外圆端面及钻深孔等工序。半精加工阶段的主要目的是为精加工阶段做基面准备,为了满足后面的淬火要求,需将半精加工表面的切削余量至少为2 mm。对于精度要求不高的端面可以在这个阶段加工到图样规定的要求。
3.3 精加工阶段
精加工阶段包括精加工前热处理、精加工前的准备加工和精加工等步骤。精加工前热处理主要是进行局部高频淬火处理。然后进行粗磨定位锥面、粗磨外圆、铣键槽和花键槽等工序。*后进行精加工,粗磨外圆、外锥面以及内锥孔,保证重要表面的加工精度。这一阶段的主要目的是将各个表面加工到图纸所规定的加工要求。因此粗加工、半精加工以及精加工均是以热处理作为加工阶段划分的边界。
4 加工顺序需注意事项
在进行轴类零件加工时,前一工序需为后一工序准备好定位基准。粗加工和精加工工序的定位基准选择以后,加工的顺序也就大致确定了。在机械加工工序过程中加入必要的热处理工序,使得数控加工中心主轴加工工艺路线可基本确定为:毛坯制造—正火—车端面钻中心孔—粗车处理—调质处理—半精加工表面淬火处理—粗、精磨外圆锥面—磨锥孔。在进行加工工序确定时,需注意以下几个问题。
第一,进行外圆加工顺序的安排时,应先加工大直径外圆,再加工小直径外圆,以免降低主轴刚度。
第二,基准*好统一,加工过程*好统一选择顶尖作为定位基准,避免使用锥堵,因此将深孔加工工序安排在*后,另一方面由于深孔加工为粗加工工序,需要将大量金属切除,容易造成主轴变形,因此深孔加工*好在粗车外圆之后进行。
第三,花键槽和键槽*好安排在精车之后,粗磨之前。如果在精车之前加工键槽,就会使得车削加工不连续,易于损坏刀具。另一方面键槽的表面精度很难控制,为了避免在加工过程中主轴主要表面受到损坏,因此将键槽加工工序放在主要表面加工之前进行。
第四,由于主轴的螺纹与主轴轴颈有同轴度要求,且半精加工阶段易产生应力及热处理变形等影响,另一方面为了避免在加工螺纹过程中损伤已经精加工的主要表面,因此将螺纹加工放在淬火处理之后的精加工阶段进行。
第五,由于数控加工中心主轴的加工要求很高,因此在加工过程中需要进行多次检验工序。各个检验工序需设置在各个加工阶段的前后以及重要加工工序的前后进行,精确度要求较高的零件可以安排探伤工序。
主轴是数控加工中心的核心部件,其加工质量的好坏直接影响着数控加工中心的工作效果及工作效率,因此在加工过程中需要根据数控加工中心的工作条件和工艺要求,制定合理有效的加工工艺和热处理方案。近几年来数控加工飞速发展,在数控加工中心主轴的加工过程中可以借助数控加工等设备,利用数控生产能够有效提高生产效率及零件加工精度,在机械工装方面可以自制加紧套和锥度套等,以进一步满足加工要求。


