咨询热线15725685099
一、CNC加工中心硬规介绍 早期的普通CNC加工中心的导轨就是硬轨,硬轨是经过热处理后,经过磨床加工在经过刮研后得到得,生产周期长,加工技术难度高,现在为了降低刮研工作量一

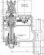
主轴松拉刀是数控加工中心的基本功能,无论型号如何其结构基本上大同小异,本文主要介绍数控加工中心主轴松拉刀的基本结构及工作原理

一般对于大行程加工中心,可做成立式,也可做成卧式,如行程1100*600*600的加工中心,他们有什么区别呢?在加工工件层面来看,大型立式加工中心和卧式加工中心有些相似,但是在结

加工中心工件坐标系是编程人员在编写程序时,在工件上建立的坐标系,其原点即为工件原点(也称工件零点或编程原点)。理论上是由编程人员任意设定的,但实际上,它是编程人员

任何的机床在使用过程中,会或多或少的出现一些的问题,数控加工中心也不例外,那具体的有哪些呢? 数控加工中心机台部份漏气是压力控制开关耐圧不够造成的,对于老的机器坏了
